Bilocale in vendita

Verona, Via san vitale - Veronetta
€ 250.000
Prezzo aggiornato
2 locali 2 locali
60 Mq 60 Mq
1 bagno 1 bagno

Bilocale in vendita

Verona, Via san vitale - Veronetta

Descrizione annuncio

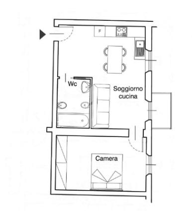
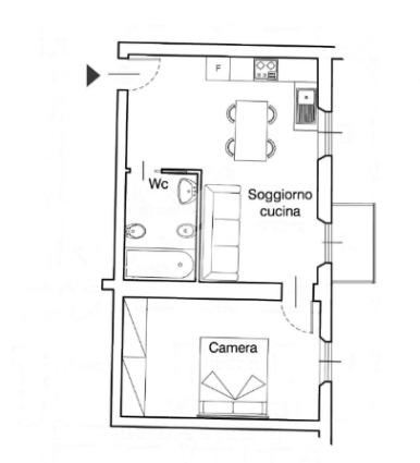
UNIVERSITA' - In elegante palazzo d'epoca nel cuore della zona universitaria, proponiamo un bilocale posto all'ultimo piano senza ascensore completamente ristrutturato. Ingresso, soggiorno con zona cottura, camera, servizio balcone e cantina. Il riscaldamento è termoautonomo e l'affaccio è su una tranquilla corte interna. Completano la proprietà una cantina e la possibilità di mettere la bicicletta all'interno della corte. La posizione strategica rende l'immobile ideale anche per investimento.

Mostra tutto

Nelle vicinanze

Trasporto pubblico Trasporto pubblico
Verona Porta Vescovo
Verona Porta Vescovo
1,3 Km
stazione di Verona Porta Nuova
stazione di Verona Porta Nuova
2,1 Km
INTERRATO ACQUA MORTA, 4
INTERRATO ACQUA MORTA, 4
130 m
Via Venti Settembre 7 III
Via Venti Settembre 7 III
140 m
Ricariche auto elettriche Ricariche auto elettriche
AGSM Piazza San Tomaso
260 m
AGSM - Cimitero
710 m
AGSM Via Pallone
770 m
AGSM - Lungadige Galtarossa
890 m
AGSM - Piazza Cittadella
960 m
Scuole Scuole
Scuola Media Duca D'Aosta
100 m
ESU di Verona - Azienda Regionale per il Diritto allo Studio Universitario
250 m
Scuola elementare Massalongo
300 m
Facoltà di Scienze della Formazione
320 m
Facoltà di Economia
330 m
Farmacia Farmacia
Farmacia San Paolo
140 m
Farmacia Al Seminario
180 m
Farmacia San Nazaro
360 m
Farmacia Martini
460 m
Farmacia San Tomio
570 m
Ospedali Ospedali
Ospedale Civile Maggiore
2,1 Km
Supermercati Supermercati
Simply Market
410 m
IN's mercato
540 m
Aldi
890 m
Natura Si
920 m
Pam
1,1 Km
Negozi Negozi
Pepe's
190 m
Gelateria Ballini
280 m
L'Artigianato di Michela
310 m
Corinne
320 m
Negozi
380 m
Bar Bar
Cafe Carducci
160 m
Osteria Ai Preti
180 m
Never Game Over
190 m
Campus
190 m
La ruota
220 m
Ristoranti Ristoranti
Trattoria Ai Scalin
110 m
Trattoria Papa e Cicia
190 m
Trattoria all'Isolo
220 m
Tabulé
230 m
Ichiban Ramen
230 m
Mostra tutto

Caratteristiche

Rif.:
61120628
Piano:
2 di 2 (ultimo Piano)
Balconi:
1
Camere da letto:
1
Arredamento:
Completo
Condizionamento:
Autonomo
Mostra tutto
Prezzo Prezzo
€ 250.000
Rata mutuo Rata mutuo
€ 1.180 / mese
Spese annue Spese annue
€ 700
Proponi il tuo prezzoProponi il tuo prezzo

Classe Energetica

G
G
G
G
G
G
G
G
G
EP globale rinnovabile:
337.40 kW h/m² anno
Anno di costruzione:
1800
Riscaldamento:
Autonomo
Tipo impianto:
A radiatori
Tipo alimentazione:
Metano

Prezzo ridotto di €1 (8%%)

Ti interessa visionare l'immobile?

Fissa un appuntamento  Fissa un appuntamento

Richiedi informazioni

Clicca su Leggi per aprire l'informativa
* Questi campi sono obbligatori

Calcola il tuo mutuo

Semplice e senza impegno
Anticipo

( % )
Mutuo

( % )

pochi semplici passi

inserisci i tuoi dati
Questionario completato
Grazie per aver richiesto un appuntamento senza impegno con un nostro Consulente del Credito e Assicurativo.

Hai inserito correttamente tutti i dati necessari e a breve riceverai una e-mail con un link da convalidare per inviare i tuoi dati.
Affiliato
Immobiliare San Tomaso Srl
P.zza San Tomaso, 17 37129 Verona (VR)

Il nostro staff


  • Mauro Zoccatelli
    Affiliato
P.zza San Tomaso, 17 37129 Verona (VR)
Zona: Veronetta-Universitá-S.Stefano-S.Giovanni in Valle
Mostra su mappa
Orari: dal lunedi al venerdi: 9.00 - 12.30 / 15.00 - 19.00; sabato: 9.00 - 12.30
Affiliato
Immobiliare San Tomaso Srl
P.zza San Tomaso, 17 37129 Verona (VR)

2026 Tecnocasa Franchising S.p.A. - P. IVA 08365160152 - Via Monte Bianco 60/A 20089 Rozzano (MI). Ogni agenzia ha un proprio titolare ed è autonoma. Privacy policy | Policy utilizzo | Cookie policy